Jesse R. Zeigler House

Rev. Jesse R. Zeigler House
Front of the house
Jesse R. Zeigler House is located in Kentucky
Jesse R. Zeigler House
Jesse R. Zeigler House is located in the United States
Jesse R. Zeigler House
Location509 Shelby St., Frankfort, Kentucky
Coordinates38°11′26″N 84°52′35″W / 38.19056°N 84.87639°W / 38.19056; -84.87639
AreaLess than 1 acre (0.40 ha)
Built1909 (1909)
ArchitectFrank Lloyd Wright
Architectural stylePrairie School
NRHP reference No.76000885[1]
Added to NRHPMay 3, 1976

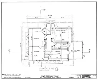
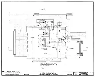
The Reverend Jesse R. Zeigler Residence is a house in Frankfort, Kentucky, United States. It was the only house designed by Frank Lloyd Wright to be built in the state of Kentucky during his lifetime. The design came from a chance meeting between Zeigler and Wright while both were traveling to Europe in late October 1909. They struck up a conversation and the commission of this structure, completed the following year, was the result.[2] The structure is a typical example of Wright's "A Fireproof House for $5000".[3]

The structure was placed on the National Register of Historic Places in 1976.[1] The house is privately owned and is not available for tours.[4]

See also

References

  1. ^ a b "National Register Information System". National Register of Historic Places. National Park Service. July 9, 2010.
  2. ^ "Rev. Jesse R. Zeigler House (Frank Lloyd Wright House; Marker Number:1726)". Kentucky Historical Marker Database, Kentucky Historical Society. Kentucky.gov. August 17, 2008. Archived from the original on June 16, 2008.
  3. ^ Beers, Peter. "Reverend Jessie R. Ziegler Residence: Frankfort, Kentucky". Archived from the original on February 17, 2004. Retrieved July 6, 2010.
  4. ^ "Rev. Jesse R. Zeigler House". Frank Lloyd Wright Sites. Retrieved February 21, 2019.